ようこそゲストさま
ログイン一戸建て
|
280万円(税込) (土地+建物+諸経費等) |
所在地 | 青森県八戸市新井田字松山中野場 | ||
|---|---|---|---|---|
| 最寄駅 | 旭ケ丘4丁目から停歩5分 | |||
| 土地面積 | 129.87m²(39.29坪) | 延床面積 | 95.22m²(28.80坪) | |
| 通学区 | 旭ヶ丘小学校(約524m)、東中学校(約1,146m) | |||
物件登録日:2026年03月03日 次回物件更新日:2026年03月31日
POINT
\スーパー・コンビニ・バス停が徒歩圏内の中古住宅!/☆市街化調整区域☆リフォームのご相談も承ります♪
この物件を購入した場合の、月々の支払い価格の一例です。
建物価格
280万円
土地
--万円
合計
280万円
消費税10%適用価格
![]()

6,563円

※借入年数40年 ※金利0.6%の場合
物件概要
| 管理物件番号 | 3638 | ||
|---|---|---|---|
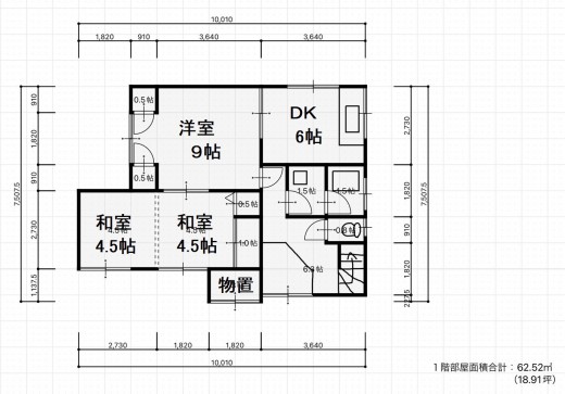
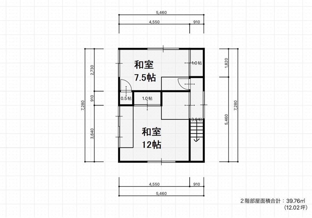
| 種別 | 中古 | 1階床面積 | 55.48m²(16.78坪) |
| 2階床面積 | 39.74m²(12.02坪) | 延床面積 | 95.22m²(28.80坪) |
| 土地面積 | 129.87m²(39.29坪) | 間取り | 4DK |
| 水道 | 公営水道 | ガス | プロパン |
| 排水設備 | 汲取 | 地目 | 宅地 |
| 用途地域 | 無指定 | 都市計画 | 市街化調整区域 |
| 建ぺい率 | 60% | 容積率 | 200% |
| 土地権利 | 所有権 | 現況 | 上物有 |
| 接道状況 | 一方 南西側:幅員4m 私道に16.5m接面(位置指定) | ||
| 備考 | ※現況渡し ※市街化調整区域につき再建築には一定の要件が必要です。 ※図面と現況に相違がある場合は現況を優先します。 ~おススメポイント~ 〇スーパー・コンビニ徒歩6分圏内♪ 〇バス停まで徒歩5分♪ 〇小学校まで徒歩7分♪ ~周辺環境~ 〇やまはる旭ケ丘店まで徒歩4分(約244m) 〇ローソン八戸旭ケ丘一丁目店まで徒歩6分(約427m) 〇旭ケ丘小/東中エリア ※物件の詳細を知りたい方はお気軽にお問合せください♪ ■ミライズ不動産はタナカホールディングスの一員です。グループ会社のタナカホーム、フジケンザイと共に安心して暮らせるお家探しをお手伝い致します! | ||
| 取引形態 | 仲介 | ||
![]()
【管理番号】3638
お電話にて【管理番号】を伝えて頂くとスムーズです。
お客様が嫌がるような営業は一切行いません。ご安心してお電話ください!
![]()