ようこそゲストさま
ログイン一戸建て
|
2,750万円(税込) (土地+建物+諸経費等) |
所在地 | 青森県十和田市三本木字稲吉121-1035(地番) | ||
|---|---|---|---|---|
| 最寄駅 | 中央モータースクールから停歩3分 日の出町から停歩5分 |
|||
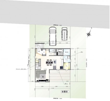
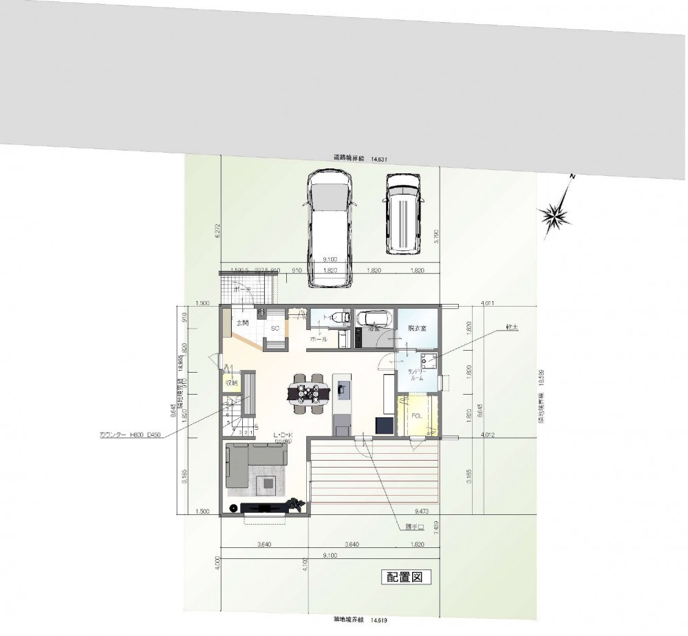
| 土地面積 | 274.00m²(82.89坪) | 延床面積 | 110.95m²(33.56坪) | |
| 通学区 | 三本木小学校(約1,154m)、十和田中学校(約1,340m) | |||
物件登録日:2026年02月03日 次回物件更新日:2026年03月03日
POINT
※契約後約6カ月で引渡予定
◆住宅ローン月々返済56300円~
◆家賃並みの住宅ローンで、子育てにやさしい新築一戸建て
◆ZEH基準省エネ住宅
◆三本木小学校まで徒歩約15分
◆子どもの通学も安心&家族の暮らしも便利な立地
◆駐車3台以上可能!お庭で家族、友達とバーベキューも楽しめる
◆LDKは広々23帖
◆パワフル温風で洗濯物がすぐ乾いて低コスト!ガス衣類乾燥機「乾太くん」標準設置
◆ゆったり入れる一坪タイプの浴室
◆2階にもトイレがあるので夜間も安心
この物件を購入した場合の、月々の支払い価格の一例です。
建物価格
2,530万円
土地
220万円
合計
2,750万円
消費税10%適用価格
![]()

64,456円

※借入年数40年 ※金利0.6%の場合
![]()
【管理番号】442
お電話にて【管理番号】を伝えて頂くとスムーズです。
お客様が嫌がるような営業は一切行いません。ご安心してお電話ください!
![]()