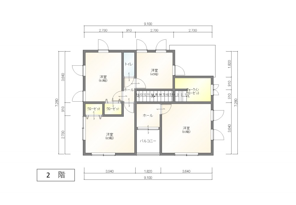
2階平面図
ようこそゲストさま
ログイン一戸建て
値下がり物件
|
2,500万円(税込) (土地+建物+諸経費等) ( |
所在地 | 青森県八戸市吹上2丁目 | ||
|---|---|---|---|---|
| 最寄駅 | 一中前バス停から停歩6分 | |||
| 土地面積 | 185.12m²(56.00坪) | 延床面積 | 12,324.00m²(3,728.01坪) | |
| 通学区 | 吹上小学校(約940m)、第一中学校(約785m) | |||
物件登録日:2026年03月03日 次回物件更新日:2026年03月31日
POINT
\値下げしました! 2014年築のオール電化中古住宅/生活に便利な施設が車で5分圏内にそろっています!
この物件を購入した場合の、月々の支払い価格の一例です。
建物価格
2,100万円
土地
400万円
合計
2,500万円
消費税10%適用価格
![]()

58,597円

※借入年数40年 ※金利0.6%の場合
周辺環境
物件概要
| 管理物件番号 | 3610 | ||
|---|---|---|---|
| 種別 | 中古 | 1階床面積 | 65.28m²(19.75坪) |
| 2階床面積 | 57.96m²(17.53坪) | 延床面積 | 12,324.00m²(3,728.01坪) |
| 土地面積 | 185.12m²(56.00坪) | 間取り | 5LDK |
| 築年月 | 2014年03月 | 水道 | 公営水道 |
| 排水設備 | 浄化槽 | 地目 | 宅地 |
| 用途地域 | 第一種低層住居専用 | 都市計画 | 市街化区域 |
| 建ぺい率 | 50% | 容積率 | 80% |
| 土地権利 | 所有権 | 現況 | 更地 |
| 接道状況 | 北側:幅員4m 公道に14m接面 | ||
| 備考 | ※現況渡しです ※現況と差異がある場合は、現況優先とします。 ~おススメポイント~ 〇オール電化住宅♪ 〇2014年築の築浅物件♪ 〇閑静な住宅街♪ ~周辺環境~ 〇ユニバース南類家店まで車で2分(870m) 〇ローソン南類家店まで車で2分(880m) 〇吹上小/第一中エリア ※物件の詳細を知りたい方はお気軽にお問合せください♪ ■ミライズ不動産はタナカグループホールディングスの一員です。タナカホーム、フジケンザイと共に安心して暮らせるお家探しをお手伝い致します! | ||
| 取引形態 | 仲介 | ||
![]()
【管理番号】3610
お電話にて【管理番号】を伝えて頂くとスムーズです。
お客様が嫌がるような営業は一切行いません。ご安心してお電話ください!
![]()